AÑO: 2015
SUPERFICIE: 285 m2
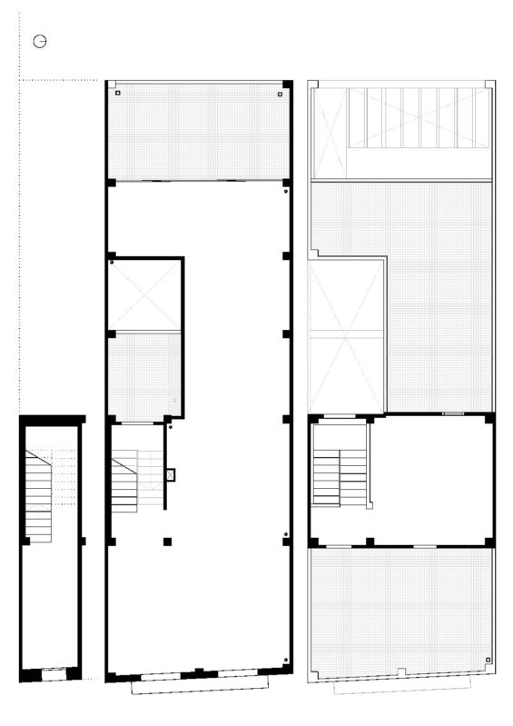
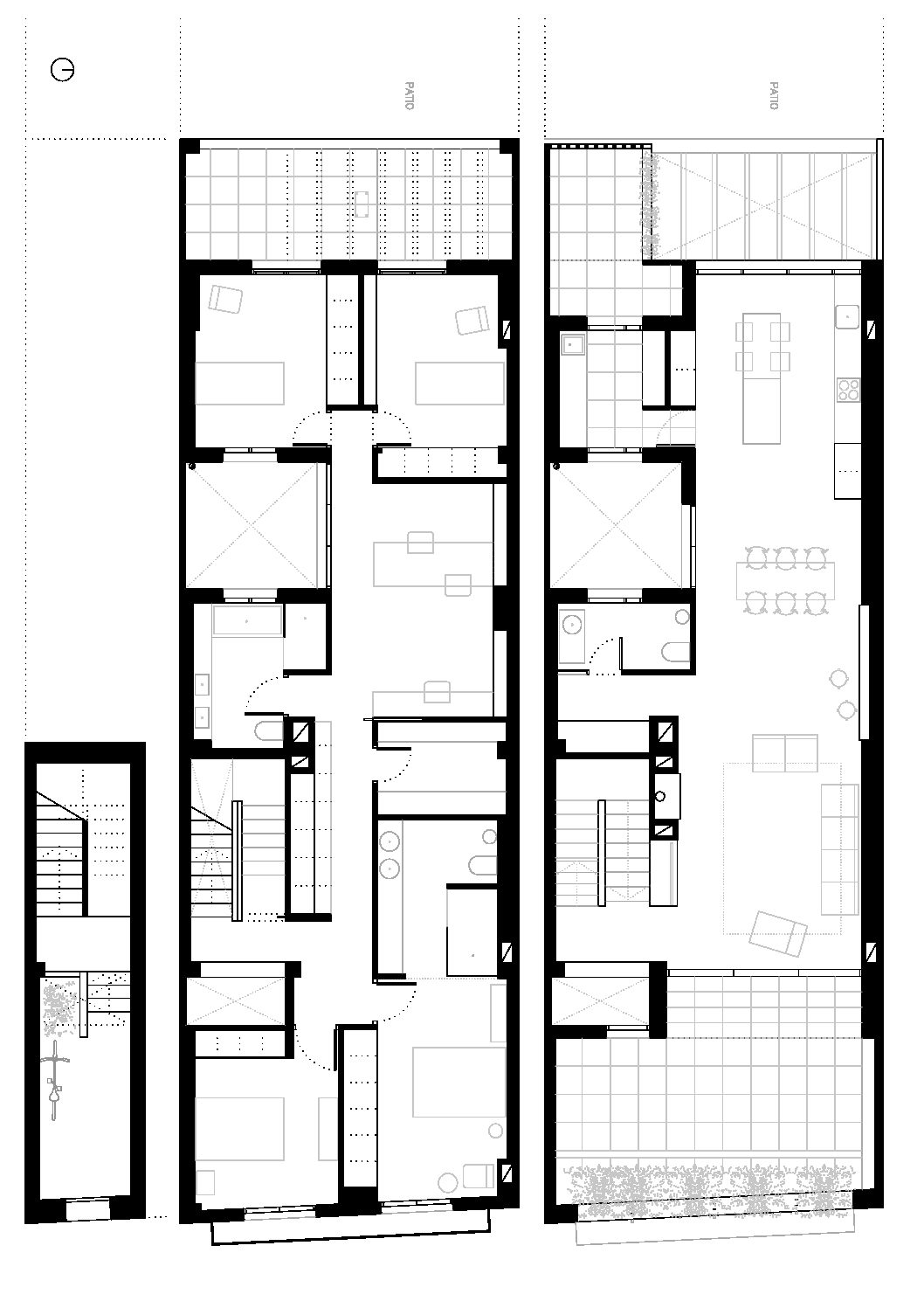
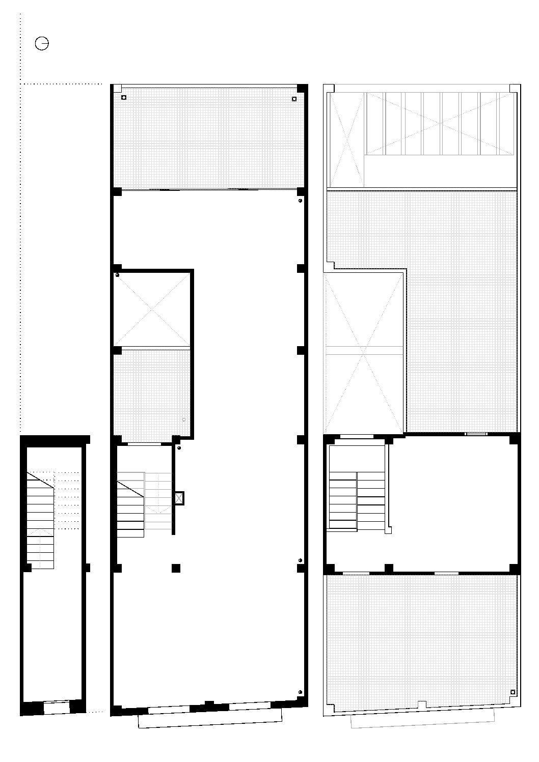
Nos encontramos con una estructura de vigas y pilares de hormigón, de planta baja + 1, que llevaba cerca de 20 años construida; la planta baja la ocupaba ya una vivienda. Nuestro cometido, elevar una planta más y dotar de contenido al espacio, con los condicionantes propios que puede generar una estructura, un núcleo de escaleras y unos patios de luces preexistentes.
Fue decisivo en este proyecto ubicar el programa de día en la planta segunda, para poder abrir el espacio a una generosa terraza desde la que poder disfrutar del sol y contemplar el campanario y las cubiertas de un entrañable casco antiguo como el de Alcàsser.
Fotografía de Ángela Sorbaioli.









