AÑO: 2019
SUPERFICIE: 120 m2
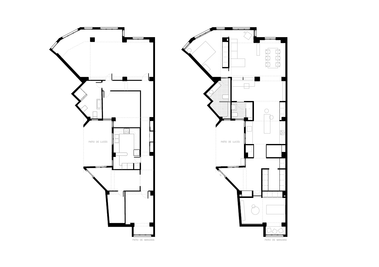
Se trata de una vivienda en bloque plurifamiliar de finales de los años 50, situada en el Ensanche de Valencia. La vivienda cuenta con una geometría algo caprichosa y achaflanada en su relación con el antiguo cauce del río Turia. En origen, la zona de día tiene una gran cantidad de luz, pero el resto de la vivienda se organiza con estancias recayentes a un largo corredor que consume una parte muy importante de la superficie y resta calidad espacial a la vivienda.
Entre las necesidades del cliente encontramos: conseguir una zona de estudio y una cocina que participe de la zona de día, almacenamiento extra y disfrutar de un segundo baño.
La clave de la nueva distribución reside en entender la circulación como transición natural entre las diferentes estancias en vez de como espacio independiente de las mismas. El concepto de umbral se ensancha para desplazar la unidireccionalidad del paso estricto y permitir que la luz achaflanada y contenida en los límites del antiguo salón pueda derramarse y aprovecharse al máximo.
Fotografía de Ejes Arquitectura










